眺望を確保しつつ外部からの目線を程よく遮る高台の家・環境創作室杉 杉 匠一さん

高台は眺望の良さは勿論てすが、自然の風、陽光が半永久的に得易いメリットがあります。
高台の家について環境創作室杉 杉 匠一さんに伺いました。
貴社が高台の家を手がけるようになったきっかけがありましたら教えて下さい。
私達にお問合せに来られる方々の半分以上が、自然豊かな環境やそれに近い立地を要望されています。
必然的に高台の土地も多く候補となっていました。
高台の家のメリット・デメリットを教えて下さい
眺望の良さは勿論てすが、自然の風、陽光が半永久的に得易いメリットがあり、反面その猛威にも備えておく必要がある事だと思います。
大雨の際は下の方に水が溜まり易くなり、排水もイメージしておかないとなりません。

高台の家で注意する点があれば教えて下さい
先のデメリット対応に加えて、地盤面の設定は考え所です。
傾斜地や雛壇状の土地も多いでしょう。
場合によっては崖条例や急傾斜地崩壊危険区域に該当する場合もあります。
法令はもとよりコストとも相談しながらどう活かすかが難しいと思います。
高台の家の間取りで注意する点があれば教えて下さい
先のメリットをどう取り込んで、デメリットにどう対処するかに尽きると思います。
間取りとはいえ立体的に考えないと良い案は生まれないと思います。
高台の家の駐車場で注意する点がありましたら教えてください
特に普通の家と変わらないと思います。

高台の家で老後に備えて注意する点がありましたら教えてください
傾斜地や段差の多い土地であれば、メンテナンスが大変になると予想されますね。
高台の家で地震に備えて注意する点がありましたら教えてください
急傾斜地での場合は地震により崩壊する対策が必要になります。
地盤強度や建物基礎の深さ、排水計画など様々な面から検討すべきです。
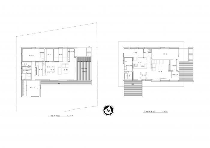
「高台に建つ我が家~2世帯住居~」 の間取り

↑「高台に建つ我が家~2世帯住居~」 間取り図

↑「高台に建つ我が家~2世帯住居~」 の立面図
「高台に建つ我が家~2世帯住居~」で工夫した点がありましたら教
えて下さい
生活の主空間全てから眺望を確保しつつ外部からの目線を程よく遮る大窓の高さの設定、ハイサイドライトからの通風計画など色々です。
土地探しから相談にのっていただけますか?
はい、実際そういうケースが多いです。
高台のマンションなども設計していただけますか?
はい。
高台の家を建てたいと思っている方になにかアドバイスがありましたら教えて下さい
出来れば土地を購入される前に設計者にご相談すると安心かと思います。
ある程度の地盤の強度、法規的な制約、コストの事など確認出来るはずです。
私達の場合、ご相談や土地探しのお手伝いでは費用は掛かりませんので、お気軽にご相談下さい。
環境創作室杉 杉 匠一さんの高台・設計事例
| 画像 | 建物の名称 | 紹介文 |
|---|---|---|
| | 高台に建つ我が家~2世帯住居~ | ちょっとした高台の傾斜地に自邸(2世帯+α)で建てました。土を盛ったり切ったりせずに、傾斜に合わせて計画しました。 |
高台・メニュー
建築家相談依頼サービスの申し込みは今すぐこちらから(無料)↓

当サイトの建築家に相談・依頼したい方は下記から相談・依頼したい内容を投稿してください。
投稿した内容は下記のページで公開され、当サイトの会員建築家から返信をもらうことができます。
https://kentikusi.jp/dr/netirai/jirei
このサービスは一般の方・業者の方でも無料で利用できます。
営業・勧誘目的の投稿はご遠慮ください。