防音に配慮したマンションリフォーム・エムカーヴェー一級建築士事務所 多田将宏さん

マンションリフォームでも防音に配慮することで防音室を作ることができます。
マンションリフォームについてエムカーヴェー一級建築士事務所 多田将宏さんに伺いました。
貴社がマンションリフォームを手がけたきっかけを教えてください
私の妻は声楽家なのですが、日々のレッスンのための防音室を自宅マンションに私の設計で新設する事になりました。
それ以来駆け込み寺的に音楽関係の知人を通じて防音室の依頼が来るようになりましたが、多くはマンションリフォームです。
マンションリフォームの費用を見積もりしてもらうことは可能ですか?
最初は現地を見させていただいて、これまでの経験からリフォームの概算費用をご相談させていただきますが、正確には詳細な設計図に基づき算出いたします。

マンションリフォームの実例を見せてもらうことは可能でしょうか
実例のほとんどが実際にお住いの家ですから、設計契約後であれば、オーナーにお願いする事は可能です。
自邸防音室はあらかじめご連絡いただきましたら随時見学可能です。
マンションリフォームの間取りで注意している点を教えてください
限られたスペースの中でもパブリックとプライベートのエリア分けを意識します。
また防音室の場合は居住者間の防音エリア分けにも配慮しています。

マンションリフォームの水回りで注意している点を教えてください
共用排水管の関係で、元の位置から離す事が難しく、先ずはその近辺の位置で考えます。
マンションをスケルトンリフォームする際に注意している点を教えてください
詳細に図面を描いたとしても、現場で従前の仕上を解体してみると、予想外の問題が出てくる事があります。
そのため少し寸法的に余裕のある設計を心がけています。
マンションリフォームの期間はどれくらいかかりますか?
条件によって変わりますが、スケルトンリフォームの場合で約1.5~2か月です。
マンションリフォームで部屋を増やすことは可能でしょうか?
採光、換気など建築法規上適法なら可能です。
マンションリフォームで壁を撤去する際に注意している点を教えてください
構造種別を見極め、適切に撤去していただきます
(共用部にあたる壁は撤去出来ません)。
マンション リフォームで子供部屋を分割することは可能でしょうか?
採光、換気など建築法規上適法なら可能です。
マンション リフォームで床暖房を設置することは可能でしょうか
フローリングの種類等に制約がありますが、可能です。
マンション リフォームで利用できる補助金はありますか?
自治体によって基準が違いますが、所得税の優遇措置などはあります
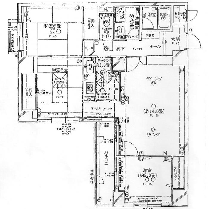
京都M邸リモデルで工夫した点を教えてください
施主は声楽家で大学教授であるため、レッスンや来客が多く、L字型住戸を活かして、パブリックとプライベートのエリア分けをしました。
パブリックゾーンについては、全体を大きな防音エリアとし、レッスンするだけではなく、ここで本を読んだり パソコン仕事をしたり、接客したり、広さがあるので場合によっては、ここで他の楽器との合わせなど、様々な可能性を考えて設計しました。
プライベートゾーンは、パブリック、防音ゾーンを引き算して残った空間 という事になります。
リビング、和室(寝室)は空間をフレキシブルに仕切る 為に、天井までの引戸を隅柱無しで設置し 、それぞれの境界を曖昧にしました。
キッチンの縦排水管は、通常の PSの形状に囚われず、ステンレスのパネルで覆って丸柱状にする事により、アイランドタイプに出来ました。
そのため、リビング全体が見た目にも広がりのある空間となりました。

京都M邸リモデルの平面図

京都M邸リモデル・ビフォー・平面図
↓

京都M邸リモデル・アフター・平面図
マンション全体のリノベーション・大規模修繕などもやっていただけますか?
リノベーション・大規模修繕のデザイン監修は可能です。
エムカーヴェー一級建築士事務所 多田将宏さんのマンションリフォーム設計事例
| 画像 | 建物の名称 | 紹介文 |
|---|---|---|
| | 京都M邸リモデル | 京都市内のマンションの、防音スタジオ付住戸へのリフォームである。施主は以前から新しい生活と音楽の為の場所を探しておられたが、一般の新築マンションでは防音の為の備えが無く、空間の自由度も低い等の理由から、中古マンションを購入して思い通りの空間を造る事を決断された。 |
マンションリフォーム・メニュー