松岡さんの家(リフォーム)

●設計事例の所在地: 
名古屋市中村区
●面積(坪): 
約21坪
●建物の種類(大分類): 
住宅関連
●メインの画像: 
●メイン画像の説明文: 

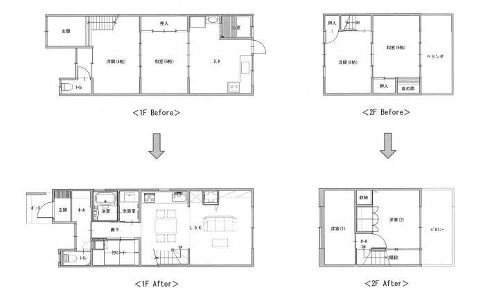
間口が2間ほどしかない古い住宅の全面リフォーム。

●建物の紹介文(依頼者のお悩み・ご希望を叶えるために工夫した点・採用した建材など): 

 外部はシンプルモダンさを引き立たせる黒のガルバリウムで仕上げ、内部は1階はコンパクトなタタミコーナーを設け、2部屋に仕切られた空間をLDKという1つの空間とした。また、階段上部の窓から光を取り入れた。2階には小屋裏空間を最大限に利用したロフトをつくり収納も多くした。

その他の画像: 

外観(改修前後)

内部(改修前後)①

内部(改修前後)②

LDK

階段上部窓

小屋裏収納

間取図

設計者

ユーザー ❨株❩川島建築事務所 川島 守 の写真
オフライン
Last seen: 5日 14時間 前
登録日: 2012-07-24 10:14

建築家に設計を依頼するメリット・デメリット

 
建築家に設計を依頼しなくても、設計施工を一括で請け負ってくれる業者はたくさんあります。
なぜ、あえて建築家に設計を依頼する必要があるのでしょうか?
建築家に設計を依頼するメリット・デメリットは下記のページをご覧ください。
 
▼建築家に設計を依頼するメリット ▼建築家に設計を依頼するデメリット
 

 

建築家相談依頼サービス・目次

建築家紹介センターでは建物を建てたい方にお近くの建築家を紹介する建築家相談依頼サービスを行っています。
建物について相談・依頼したい方はぜひ、下記のページをご覧ください。

建築家相談依頼サービス・目次
建築家相談依頼サービス・トップページ
建築家相談依頼サービスの流れ
建築家相談依頼サービスの特典
建築家相談依頼サービス・お客様の声
建築家相談依頼サービスの料金
建築家相談依頼サービス・最近の相談・依頼事例
建築家相談依頼サービスのよくある質問
建築家相談依頼サービスの安心安全宣言