ギャラリーハウス

『ギャラリーのような家』
都市の中にある築41年の鉄骨造メゾネット住戸のリノベーション。1~2Fは貸事務所、3~4Fが対象住戸であり、改修前は3Fを民泊施設として活用していたが、住まい手が変わり、新たに夫婦と子供2人の家族向けのプランへと改修した。3Fは壁を取り払い、鉄骨造の特徴を生かした開放的なリビングアクセス形式の住戸プランとした。
従前、民泊で利用されていた物件を取得し、家族で住む間取りへ変更する必要がありました。
デザインはモノクロを中心とした空間で、リビングに畳のスペースが欲しいとの事でした。
子供が部屋に閉じこもり切りにならないようなプランにしたいとの事でした。
依頼者より、「『House M』の施主の友人であり、『House M』を実際に見て、デザインと機能のクオリティの高さに感心して紹介してもらいました。現地に来ていただき、初回の提案をいただいた上でその提案と対応の良さに安心して依頼しました。」
改修前は民泊用と住戸用の2か所の入口があったが、玄関は1か所のみとし、3Fは壁を取り払い、開放的なリビングアクセス形式の住戸プランとした。家族や来客は必ず3Fの大部屋を通ることになり、お互いの顔が良く見える風通しの良い平面計画となっている。
3Fの大部屋はこの家を訪れる全ての人の目に付くパブリックな場所であるため、収納を充実させてモノを片付けられるとともに、家族の個性が見えるようにモノを飾ることができる、ギャラリーのような空間が良いのではないかと考え、白地をつくり、オブジェを置くように黒い什器を配置していくデザインとした。ギャラリー空間にはソファは置かず、黒い畳スペースを計画した。
「元々の微妙なデザインから素敵な空間にガラッと変わり、とても居心地が良く、日々の生活がとても幸せです。子供たちも広いLDKと畳スペースを気に入っています。大きな窓に付けてもらった縦型ブラインドのデザインも気に入っています。寝室の階も廊下にちょっとした居場所があり、子供たちとコミュニケーションと取る場所になっています。洗濯機の上に付けてもらった幹太くんも大活躍しています。とても住み心地の良い家にしていただき、ありがとうございました。」

玄関の仕切りがない代わりにハイカウンターを置き、キッチンとの間の緩衝スペースとした。キッチンはコスト効果の高い既製品のシステムキッチン。それ以外の什器は特注製作。

リビングの畳スペースから全体を見る。床はタイル張り。

リビングの畳スペース。カラースキームに合わせて製作した黒い畳スペース。

ダイニングより玄関、キッチン方向を見る。

トイレ、収納ゾーンよりキッチンを見る。

玄関脇の手洗い。コスト効果の高い既製品を選定。

寝室階の廊下より洗面室方面を見る。

洗面室。洗面台とミラーキャビネットはコスト効果の高い既製品を選定。

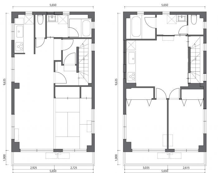
BEFORE. 改修前の平面図。

AFTER. 改修後の平面図。
建築家に設計を依頼するメリット・デメリット
建築家に設計を依頼しなくても、設計施工を一括で請け負ってくれる業者はたくさんあります。
なぜ、あえて建築家に設計を依頼する必要があるのでしょうか?
建築家に設計を依頼するメリット・デメリットは下記のページをご覧ください。
▼建築家に設計を依頼するメリット ▼建築家に設計を依頼するデメリット
建築家相談依頼サービス・最近の相談依頼事例
建築家相談依頼サービス・目次
建築家紹介センターでは建物を建てたい方にお近くの建築家を紹介する建築家相談依頼サービスを行っています。
建物について相談・依頼したい方はぜひ、下記のページをご覧ください。
| 建築家相談依頼サービス・目次 |
|---|
| 建築家相談依頼サービス・トップページ |
| 建築家相談依頼サービスの流れ |
| 建築家相談依頼サービスの特典 |
| 建築家相談依頼サービス・お客様の声 |
| 建築家相談依頼サービスの料金 |
| 建築家相談依頼サービス・最近の相談・依頼事例 |
| 建築家相談依頼サービスのよくある質問 |
| 建築家相談依頼サービスの安心安全宣言 |