希望の家(リノベーション)

2フロアまるごと自分だけワンルーム、好きなことを楽しむ別宅です。
玄関から裏庭までつながっている通り土間を颯爽と自転車で走るKさん。
自分ひとりだけの家を手に入れようと思ったのは、ご主人と息子さんと3人で暮らす家が家族の持ち物であふれ、暮らしにくさを感じていたからです。「ほっっとできる場所がほしくて・・・」と、第二の生活拠点を構えることにしました。そんな時に出会ったのがこの家でした。
「築50年ほどの一戸建てで、老朽化がすすんでいたのですが、トップライトから部屋に降り注ぐ、明るくてあたたかい日射しがとても気に入ったんです」とKさん。私共に希望されたのは、ゆったりと過ごせる広い空間でした。
豊富な経験を活かして、バランスのとれた提案をしてくれるところ。
1階は裏庭まで家の中を自転車で突き抜けられるよう土間に。真ん中を島のように1段高くして居間とワークスペース、キッチンを設置。いちばん奥に仕切りを設けずにバスタブを造作しました。玄関から裏庭まで遮るものは何もなく、奥行きのある空間が広がります。2階のトレーニングルームはフラットな造りで、壁に大きな鏡が取り付けられています。Kさんは看護師という職業柄、健康的な体の大切さを実感していて、耐力や筋力を維持するために、生活の中でエクササイズができる家にしたいという要望がありました。そのため。2階から1階に滑って移動できる滑り棒やバスタブに設置した懸垂用の吊り輪など作体力づくりのための仕掛けを作りました。
ここは日々の生活拠点ではなく、自分の好きな時間に好きなことをして過ごす、Kさんだけのプライベートハウス。
職場からちょっと寄り道して、この家でコーヒーを飲み家に帰るのが至福の時間だそうです。

木張りと木製建具の外観

土間に浮かぶ居間(ワークスペース)

ワークスペースとキッチンを突き通す7mカウンター

大きなトップライトから自然光が射し込むキッチンとバスルーム

光天井が明るく照らすキッチンとワークスペース

すべり棒で滑り降りるKさん

2階廊下をリノベーションして小さな書斎に

2階の滑り棒とFRPグレーチングの床

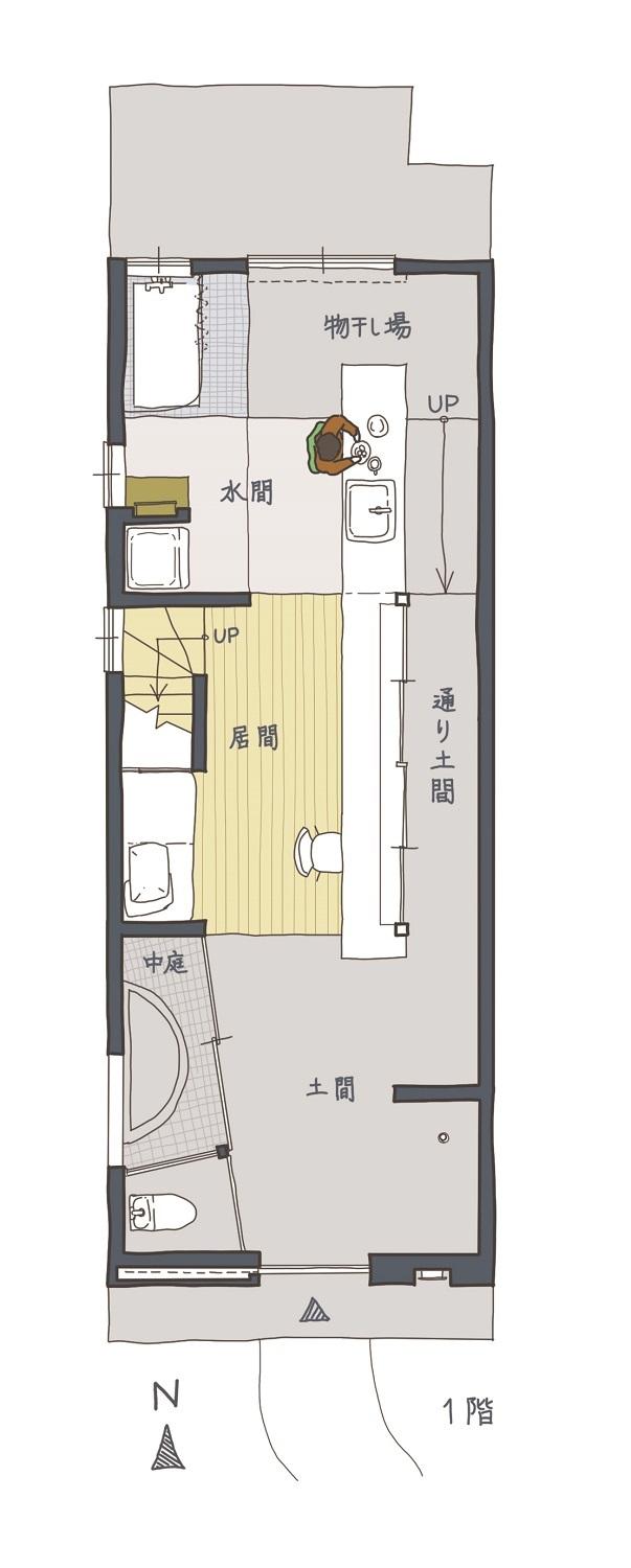
1階の平面図

2階の平面図
建築家に設計を依頼するメリット・デメリット
建築家に設計を依頼しなくても、設計施工を一括で請け負ってくれる業者はたくさんあります。
なぜ、あえて建築家に設計を依頼する必要があるのでしょうか?
建築家に設計を依頼するメリット・デメリットは下記のページをご覧ください。
▼建築家に設計を依頼するメリット ▼建築家に設計を依頼するデメリット
建築家相談依頼サービス・最近の相談依頼事例
建築家相談依頼サービス・目次
建築家紹介センターでは建物を建てたい方にお近くの建築家を紹介する建築家相談依頼サービスを行っています。
建物について相談・依頼したい方はぜひ、下記のページをご覧ください。
| 建築家相談依頼サービス・目次 |
|---|
| 建築家相談依頼サービス・トップページ |
| 建築家相談依頼サービスの流れ |
| 建築家相談依頼サービスの特典 |
| 建築家相談依頼サービス・お客様の声 |
| 建築家相談依頼サービスの料金 |
| 建築家相談依頼サービス・最近の相談・依頼事例 |
| 建築家相談依頼サービスのよくある質問 |
| 建築家相談依頼サービスの安心安全宣言 |