完全2世帯住宅計画案
●設計事例の所在地:
名古屋市
●面積(坪):
264㎡(80坪)
●建物の種類(大分類):
住宅関連
●メインの画像:

●メイン画像の説明文:
名古屋市での完全2世帯住宅の計画案です。
模型写真 & 内観パース
建てる前に依頼者が悩んでいた事・ご希望:
道路との高低差の扱いと完全2世帯住宅の形態について
依頼者があなたに依頼した決め手:
道路と敷地の高低差を利用したガレージの計画と完全2世帯住宅の計画が良い
●建物の紹介文(依頼者のお悩み・ご希望を叶えるために工夫した点・採用した建材など):
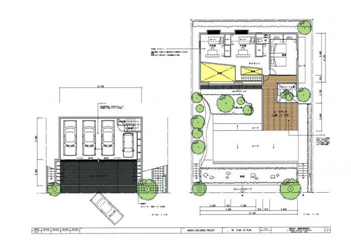
名古屋市での完全2世帯型住宅の計画案である。
敷地は道路と高低差があり1.2mほど高く、整形な形状である。高低差を利用して半地下のガレージを計画し、住宅はアプローチは共用であるが玄関から完全分離した2世帯住宅である。
2棟でコの字型に配置し、中庭を介してそれぞれの世帯の様子が感じられるよう配慮している。
依頼者の声:
すべての要望を取り入れた計画であり、満足している。
現在予算調整中であるが、できるだけ早く着工したい。
その他の画像:

コンセプト

1F PLAN

地階、1F PLAN

ELEVATION

SECTION
建築家に設計を依頼するメリット・デメリット
建築家に設計を依頼しなくても、設計施工を一括で請け負ってくれる業者はたくさんあります。
なぜ、あえて建築家に設計を依頼する必要があるのでしょうか?
建築家に設計を依頼するメリット・デメリットは下記のページをご覧ください。
▼建築家に設計を依頼するメリット ▼建築家に設計を依頼するデメリット
建築家相談依頼サービス・最近の相談依頼事例
建築家相談依頼サービス・目次
建築家紹介センターでは建物を建てたい方にお近くの建築家を紹介する建築家相談依頼サービスを行っています。
建物について相談・依頼したい方はぜひ、下記のページをご覧ください。
| 建築家相談依頼サービス・目次 |
|---|
| 建築家相談依頼サービス・トップページ |
| 建築家相談依頼サービスの流れ |
| 建築家相談依頼サービスの特典 |
| 建築家相談依頼サービス・お客様の声 |
| 建築家相談依頼サービスの料金 |
| 建築家相談依頼サービス・最近の相談・依頼事例 |
| 建築家相談依頼サービスのよくある質問 |
| 建築家相談依頼サービスの安心安全宣言 |