猫の集合住宅

キャットウォークのあるリビング
猫が大好きで、猫の為の集合住宅を作りたい。しかも、住むのが楽しみになる、ワクワクする様なデザインの家はつくれますか?というご相談でした。
日当たりの凄く悪い敷地なので、暗くなってしまう。
住宅密集地で、北側道路、こんなところで快適に住めるのか心配。
猫も人も居心地の良い、明るい家にしたい。
元々ご主人が生まれ育った家の建て替えで、愛着の有る家の建て替えです。
女性にも借りてもらえる様な、集合住宅にしたい。
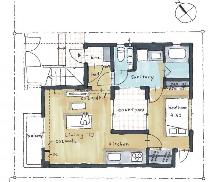
北向きの暗い敷地を、快適な住まいする為に、建物の真ん中に中庭をつくり、3階から、1階まで、日の光が白い中庭の外壁に反射しながら注ぐ地上までそそぐ、明るい住まいを提案しました。
小さな敷地ですので、各階、1つだけの住戸として、1階から3階まで中庭をそれぞれが取り囲んでいます。
普通集合住宅の様に、隣の部屋が無い為、隣の人の気配を感じず、プライバシー性の高い住まいです。
猫と一緒に住む家ですので、キャットステップ、キャットウォークが有り、リビングの高い場所は、猫の住む世界にしています。
中庭を囲んだ間取りは、各部屋の扉、猫の通れる猫ドアをつけた事で、猫がグルグル1週して遊べる、猫が遊べる回遊式の住戸なっています。
回遊式の間取りは、人の動きの自由度高めて、生活しやすい間取りの特徴です。
中庭を取り囲む事で、明るさと心地良さ、生活のし易さを兼ね備えています。
中庭は外で猫遊ばせても、迷子にならない安全な遊び場になっています。
トイレには、猫のトイレを置く場所もうけて、猫トイレ用換気扇も整備しています。
玄関には、猫が飛び出してしまわない様に、格子の内扉をつけました。
女性も借りられる様、オートロックなどのセキュリティの配慮や、宅配ボックス設置しています。
何より、覗かれない、音がしない、プライバシーに配慮した設計を提案しました。
また、クローゼット・オープンクローゼット・リビングの棚・洗面所のタオル棚・洗濯機棚・トイレの猫グッズ置場・下足入れと収納たっぷりです。
調湿、吸匂するタイル、エコカラットもリビングの壁に使い、猫の匂いも消してくれます。
完成後、日の当たらない暗い敷地だった住まいが、中庭を通した光が部屋に入る、明るい住まいになりました。
入居募集したところ、数日で満室になり、順番待ちも出る人気の集合住宅です。
徒歩1分の近所から越して来た方もいらして、猫が中庭で遊ばせられると、お気に入りでした。
賃料も、近隣相場よりも、2割増しで貸す事ができ、賃貸集合住宅としても安定的な運営が出来る状態になりました。
少しの遊び心を共有してもらい、何より人と猫の快適な生活を望んだ、オーナーさんの設計へのご理解おかげで、猫の集合住宅がより良い質の住まいとして完成出来ました。
公式ホームページ【株式会社小木野貴光アトリエ一級建築士事務所】はこちらから
⇒ WEB https://www.ogino-a.com
⇒ Email ogino-t@ate-o.com

リビング

オープンクローゼット

サニタリー

白の外観

猫が外に出ない格子扉の玄関

平面図 プラン PLAN
建築家に設計を依頼するメリット・デメリット
建築家に設計を依頼しなくても、設計施工を一括で請け負ってくれる業者はたくさんあります。
なぜ、あえて建築家に設計を依頼する必要があるのでしょうか?
建築家に設計を依頼するメリット・デメリットは下記のページをご覧ください。
▼建築家に設計を依頼するメリット ▼建築家に設計を依頼するデメリット
建築家相談依頼サービス・最近の相談依頼事例
建築家相談依頼サービス・目次
建築家紹介センターでは建物を建てたい方にお近くの建築家を紹介する建築家相談依頼サービスを行っています。
建物について相談・依頼したい方はぜひ、下記のページをご覧ください。
| 建築家相談依頼サービス・目次 |
|---|
| 建築家相談依頼サービス・トップページ |
| 建築家相談依頼サービスの流れ |
| 建築家相談依頼サービスの特典 |
| 建築家相談依頼サービス・お客様の声 |
| 建築家相談依頼サービスの料金 |
| 建築家相談依頼サービス・最近の相談・依頼事例 |
| 建築家相談依頼サービスのよくある質問 |
| 建築家相談依頼サービスの安心安全宣言 |