<Cuttersさんの減築>さいたま市

一階は理容店、二階と三階は住居となっています。西陽の当たる建物の正面は熱を反射し断熱性能を高めるサイディングを採用しました。間取りとの関係を見ながら家具の配置と共に窓をデザイン的に配置しました。
工事の間も店舗の営業は続けながら工事が出来ないか、県道の拡幅により削り取られてしまうキッチンが別の場所に設けられるかということを心配されていました。
地元の工務店にも繋がりのある設計事務所だったということで声をかけて頂きました。
もとのではキッチンがただ部屋の壁に置かれただけのものでしたが、より機能的なキッチンスペースを確保する事が求められました。そしてこれまで殆ど洗濯機置き場でしか無かったようなスペースを脱衣室として充実、浴室も造り付けだった古い浴室も掃除のし易い保温性の良いユニットバスに入れ替えました。
居間・食堂
二人家族としての広さです。外観にもあった横長窓は高窓として部屋の奥まで明るくしてくれます。
居室1。外観写真にもあった横長の窓はこのように作業机に座った時に大きなパノラマ、仕事の終わった夜には大宮駅の夜景を見せてくれるように機能しています。最近ご要望の多い青い壁紙をこちらから提案した白い壁紙と使い分けながらコーディネートしています。
厨房もお好みの色でも調和してくれました。
脱衣所として使っていた窓もなく、湿気の抜けなかった暗く狭い洗濯室。話し合いによって既存の窓を厨房側と半分使う形で、明るい洗面脱衣室にしました。後付けスクリーンによって光を取り入れながらプライバシーの確保をします。
キッチン背面の冷蔵庫置き場と食器棚。洗面室側と半分ずつ使う窓は、風通しや南に面するところから採光でも大変有用な窓ということでしたので食器棚の側板を小さめに作って合わせました。
居室2。押入と仏壇置き場になっています。こちらはお父様のお好きな色で襖紙を決めています。
階段室も下地を残し、表面材のみ張り増しをして結局全体的に綺麗な住まいへとなりました。

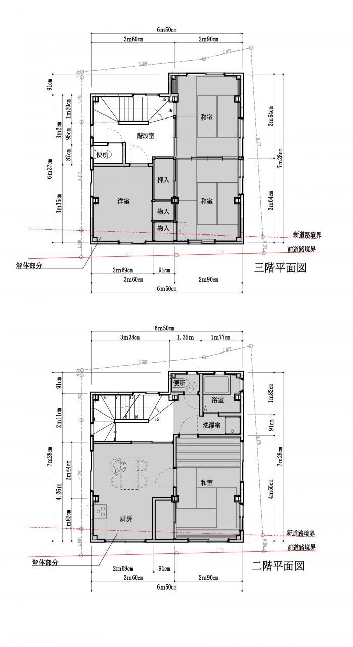
変更前の間取り図

減築後の間取り図。1m以上のカットです。
建築家に設計を依頼するメリット・デメリット
建築家に設計を依頼しなくても、設計施工を一括で請け負ってくれる業者はたくさんあります。
なぜ、あえて建築家に設計を依頼する必要があるのでしょうか?
建築家に設計を依頼するメリット・デメリットは下記のページをご覧ください。
▼建築家に設計を依頼するメリット ▼建築家に設計を依頼するデメリット
建築家相談依頼サービス・最近の相談依頼事例
建築家相談依頼サービス・目次
建築家紹介センターでは建物を建てたい方にお近くの建築家を紹介する建築家相談依頼サービスを行っています。
建物について相談・依頼したい方はぜひ、下記のページをご覧ください。
| 建築家相談依頼サービス・目次 |
|---|
| 建築家相談依頼サービス・トップページ |
| 建築家相談依頼サービスの流れ |
| 建築家相談依頼サービスの特典 |
| 建築家相談依頼サービス・お客様の声 |
| 建築家相談依頼サービスの料金 |
| 建築家相談依頼サービス・最近の相談・依頼事例 |
| 建築家相談依頼サービスのよくある質問 |
| 建築家相談依頼サービスの安心安全宣言 |