海の見える家
●設計事例の所在地:
神奈川県鎌倉市
●面積(坪):
124㎡(37坪)
●建物の種類(大分類):
住宅関連
●メインの画像:

●メイン画像の説明文:
ロケーションは江の島を見下ろす眺望の良い高台です.
南側に傾斜した斜面を利用して母屋とゲストハウスの2棟を配置しています。
建てる前に依頼者が悩んでいた事・ご希望:
傾斜地を有効利用したい。
建設にあたり建設用の重機が入らないため、どうするか。
依頼者があなたに依頼した決め手:
傾斜地を有効に利用した点と2棟配置した構成が面白い。
●建物の紹介文(依頼者のお悩み・ご希望を叶えるために工夫した点・採用した建材など):
傾斜地を利用して最高の眺望と日照条件を確保している。
建設工事はほとんど手作業で行い、設計者としても工事に協力して手作り感・達成感が強く感じられる。
依頼者の声:
傾斜地をうまく利用し、2棟配置した構成が秀逸である。
その他の画像:

リビング及びバスルームからの眺望と日照は
最高である。

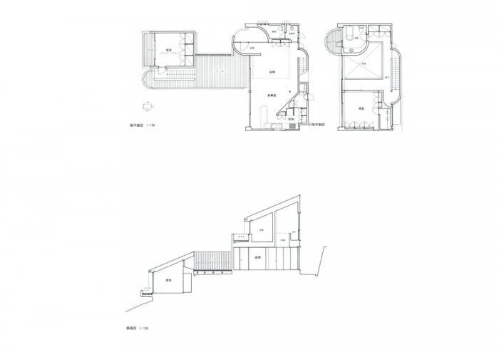
平面図及び断面図
建築家に設計を依頼するメリット・デメリット
建築家に設計を依頼しなくても、設計施工を一括で請け負ってくれる業者はたくさんあります。
なぜ、あえて建築家に設計を依頼する必要があるのでしょうか?
建築家に設計を依頼するメリット・デメリットは下記のページをご覧ください。
▼建築家に設計を依頼するメリット ▼建築家に設計を依頼するデメリット
建築家相談依頼サービス・最近の相談依頼事例
建築家相談依頼サービス・目次
建築家紹介センターでは建物を建てたい方にお近くの建築家を紹介する建築家相談依頼サービスを行っています。
建物について相談・依頼したい方はぜひ、下記のページをご覧ください。
| 建築家相談依頼サービス・目次 |
|---|
| 建築家相談依頼サービス・トップページ |
| 建築家相談依頼サービスの流れ |
| 建築家相談依頼サービスの特典 |
| 建築家相談依頼サービス・お客様の声 |
| 建築家相談依頼サービスの料金 |
| 建築家相談依頼サービス・最近の相談・依頼事例 |
| 建築家相談依頼サービスのよくある質問 |
| 建築家相談依頼サービスの安心安全宣言 |