スペンサー

●設計事例の所在地: 
東京都杉並区
●面積(坪): 
85.9㎡(26.0坪)
●建物の種類(大分類): 
住宅関連
●メインの画像: 
●メイン画像の説明文: 

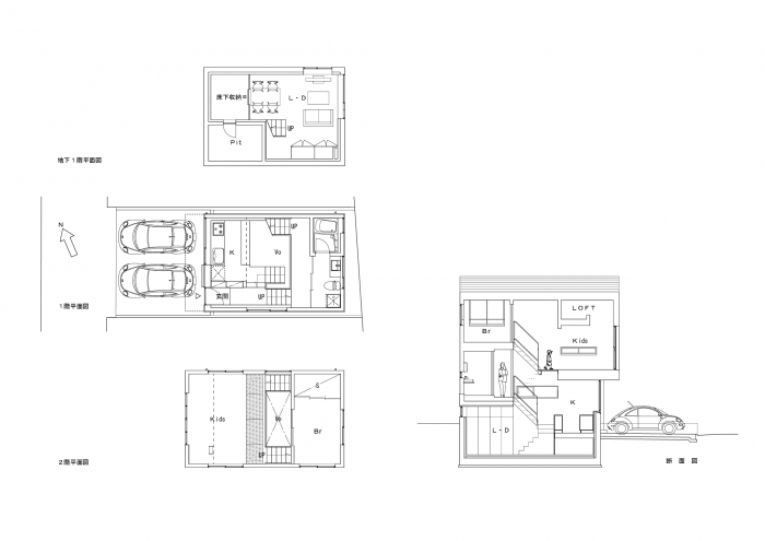
狭小ローコスト住宅です。都市部で家を建てようと思うと誰もがぶつかる問題にトライしています。「狭い」「暗い」「斜線があって高く建てられない」「地下が湿気る」「予算オーバー」などなど。さらに駐車場2台分確保となかなかの難問。どうやってクリアしてきたかを どうぞご覧ください。

建てる前に依頼者が悩んでいた事・ご希望: 

建て主さんは30代のお若いご夫婦。2歳の男の子のいる3人家族です。 ジャムズも参加した10組の建築家イベントにやってきて真っすぐに私たちのブースに来て相談いただいたのを覚えています。始めからえらく気に入っていただけていたので好みについての意思疎通はスムーズだったのですが やはり狭小ローコストが抱える問題について悩まれていました。また、小型の愛車2台分の駐車場が条件となりました。

依頼者があなたに依頼した決め手: 

特に事務所が近いというわけでもなく、雑誌やテレビでご覧になって好みが共有できるということで決めていただいたと後で聞きました。私たちが毎回同じものを造っていれば出来た建物を見て声を掛けてもらえればいいのですが、世の中に無いものをオーダーで造るわけですから この「好みが共有できる」というのはとても大事です。そこさえ合っていれば右に行っても左に行っても納得のものが出来上がるわけですから。

●建物の紹介文(依頼者のお悩み・ご希望を叶えるために工夫した点・採用した建材など): 

計画地は 東京都杉並区 駅からも近いうえ緑にも恵まれた住宅地で暮らしやすい立地です。敷地面積は20坪弱で、都心部では特別狭いという感じもしませんが、2台分のカースペースを設けるため建坪が圧迫。これを解消するため2階部分は若干オーバーハングしています。床面積を確保するべく地下を設け そこを家族の共用スペースL・Dとし 上階に個室を配したプランとなっています。市街地では狭小敷地となりがちなため3階建ても珍しくありませんが、どうしても上下移動が多くなるうえ 階段面積が他のスペースを圧迫しがちです。今回は中央の吹き抜けを介したスキップフロアを採用し階段も開放感を演出するパーツとしました。また吹抜け上部に設けたトップライトにより下階に採光を落としています。地下のL・Dにはローコストながら床暖房を設けています。サーキュレーターを回せば上下階の温湿度差を無くすことができハイサイドの窓を開け放てば熱を逃がすことも出来ます。キッチンや水回りを地下にしなかったのは排水槽やポンプアップによるコストアップを避けるためです。

依頼者の声: 

狭小住宅は相談も多く広さや開放感などは体感しないと分からないのでなるべく実際の住宅を見ていただくようにしているのですが、スペンサーの建て主さんは今でも住宅見学をお願いすると快く引き受けてくれる有りがたい建て主さんです。見にいらした方にご自分の経験や感想を伝えてくれるのですが いつも決まって「ともかく設計はジャムズに頼んだ方がいい」と言ってくれます。営業ありがとうございます。

その他の画像: 

地下L・Dからキッチンを見上げる。床仕上げは長尺塩ビシート。床暖房を設けています。壁天井は石膏ボードに塗装です。地下部分の外壁は断熱二重壁になっていて湿度や冷気の侵入を妨げます。

キッチンには流し台と同じ長さの背面カウンターがありレンジやゴミ箱、ストック類が収納される配膳台として使われます。手前の壁にも収納が仕込まれ狭小住宅ならではの工夫がされています。

地下を入れると3層分の吹き抜け。チョコ色の手すりがぐるぐると回ります。丁部にはトップライトとサーキュレーター。写っていませんがハイサイドの窓も1階で操作出来ます。

2階のキッズスペースです。将来2室に分けられる計画になっています。上部にはそれぞれのロフト。

外観ファサードです。外壁は既成品のサイディングを使用しています。鋼製玄関ドアの横のパネルは室内取り出来るポストとドアホンが仕込まれています。また将来エアコンを増設した場合の配管隠しにもなっているため見た目もスッキリ。

設計者

ユーザー ジャムズ 一級建築士事務所 仲條 雪 の写真
オフライン
Last seen: 3年 2ヶ月 前
登録日: 2015-12-02 14:41

建築家に設計を依頼するメリット・デメリット

 
建築家に設計を依頼しなくても、設計施工を一括で請け負ってくれる業者はたくさんあります。
なぜ、あえて建築家に設計を依頼する必要があるのでしょうか?
建築家に設計を依頼するメリット・デメリットは下記のページをご覧ください。
 
▼建築家に設計を依頼するメリット ▼建築家に設計を依頼するデメリット
 

 

建築家相談依頼サービス・目次

建築家紹介センターでは建物を建てたい方にお近くの建築家を紹介する建築家相談依頼サービスを行っています。
建物について相談・依頼したい方はぜひ、下記のページをご覧ください。

建築家相談依頼サービス・目次
建築家相談依頼サービス・トップページ
建築家相談依頼サービスの流れ
建築家相談依頼サービスの特典
建築家相談依頼サービス・お客様の声
建築家相談依頼サービスの料金
建築家相談依頼サービス・最近の相談・依頼事例
建築家相談依頼サービスのよくある質問
建築家相談依頼サービスの安心安全宣言