茶室の水屋のお話(^.^)/~~~
投稿日時:
2021-01-28 13:12

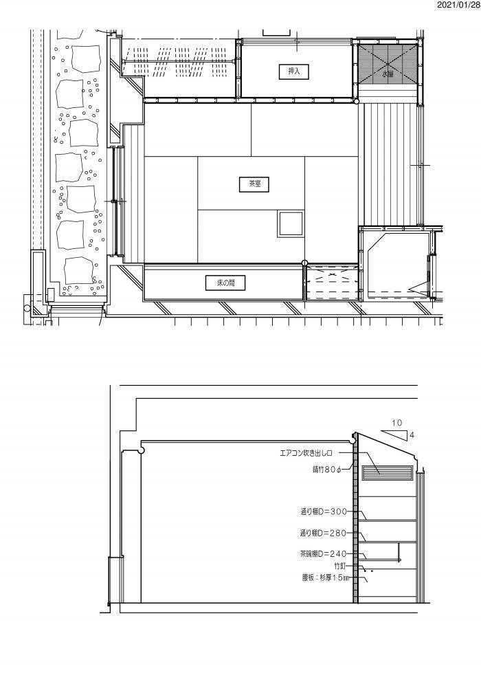
茶室と水屋は切り離せないものですね!
前事務所で担当させて頂いた9階建てのクライアント宅含む共同住宅…9階のクライアント宅に茶室をつくりました。
マンションにある茶室ですが…本格的に設計したことを記憶しています。
流派は裏千家…クライアント奥様は自由な発想でやってくださいと形式にとらわれない素敵な方でした!そのおかげで床の間には円形を使ったり…若い感性で自由にやらせて頂けました。
その中でもちろん水屋もつくったのですが…水屋に関しては昔からのしきたりをたくさん勉強して決めていったのを覚えてます。
新しいものと古いもの…それらが混在している茶室…今でも鮮明に覚えてます(^^)