建築図面

建築主の要望」と「設計者の意図」を「施工者」に伝える為には正確な図面が必要になります。
設計には「基本設計」と「実施設計」があり、「基本設計」とは主に建物の概要が一目で分かる図面を作成する業務をいいます。
「基本設計」としての図面には仕上げ表、配置図、面積表、平面図、立面図(建物の外観)、断面図があります。
「基本設計図」が完了したら、建築主の要望とに食い違い等がないかなどを打ち合わせして、細かい部分を調整します。
調整が完了した「基本設計図」を元に「実施設計図」を作成していきます。
「実施設計」とは「基本設計」では書ききれない細かな部分を図面にします。
「実施設計」では矩計図(断面図を拡大した図面)、建具表、各部詳細図(平面図を拡大した平面詳細図等も含まれます)、枠組み詳細図(建具枠等)、家具図、展開図、構造図、設備図、外構図を作成します。
この段階で図面は30枚くらいになりますが、全ての図面に整合性が取れていないと現場では混乱しますので、PC上で図面を重ねながら整合性も整えます。
簡単に主な図面の説明をしてみたいと思います。

平面図です。
平面図には柱の位置、筋違の位置、サッシの位置、設備関係の位置などが一目でわかるように寸法を記入します。
ここで書ききれない部分は詳細図を書いて補います。

立面図です。
立面図には建物の高さ、外壁・サッシ等が分かるように書き入れます。

矩形図です。
断面図を拡大した図面になります。
この図面には高さ関係の細かい寸法、内外の仕上げ、基礎の形状、構造材の大きさ、サッシの高さの寸法、断熱の種類等を書き込みます。平面図の並んで、図面の中核をなすものです。

建具表です。
表という名前がついていますが、これも重要な図面です。
鋼製建具表と木製建具表があり、建具の寸法と取付く場所、取付金物、ガラスの種類、数量等を表にして一目でわかるようにしてあります。

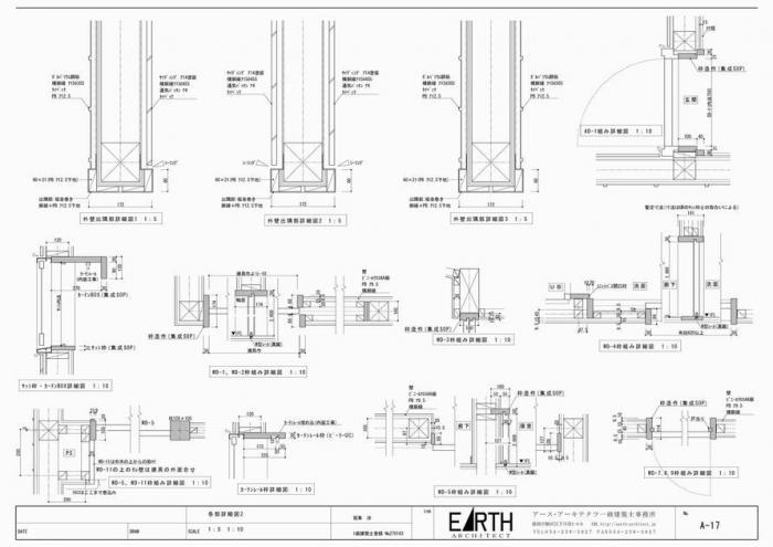
各部詳細図です。
平面図、矩形図等で書ききれなかった部分を拡大して書くことによって、部材同士の取り合い等が明確にわかるようになっています。

構造図の一部の基礎伏図(基礎の図面)です。
一般的な構造図は簡単に済ませてしまいますが、構造図こそ入念に書かないと「設計者が求めている構造強度」が出来ない恐れがあります。
以上簡単に図面の説明をしましたが、図面はたくさん書けば良いと言う訳ではありません。
沢山そして細かく書きすぎると、職人さんを悩ませてしまう恐れもあります。
図面は分かりやすく、そして最低限が理想です。
それでも「職人さんに伝えたいところ」を表現するには木造住宅でも30枚以上は必要になってしまいます。