アパート建築のノウハウ:1
投稿日時:
2017-04-06 14:43

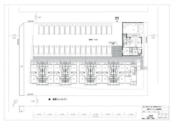
<将来の安定した収入を得ながら自邸を備えた土地活用の事例>
・自邸ゾーンと賃貸ゾーンの分離
・賃貸ゾーンは収支計画に見合った計画とするため価格の安い木造2階建てとし
規模が500㎡以上となる場合は、分棟した建てることが防火上有効です。
住みよいコンパクトさと、あきのこないベーシックな間取りもポイントです。
共同して住まう「集の知」を実現できればいいのではないでしょうか・・
●○・・・・・・・・・・・・・・・・・
南俊治建築研究所 代表 南 俊治
神戸市中央区八幡通4-2-10-201
K:090-6983-4377
E-mail:CQN05405@nifty.com
http://minamis.webcrow.jp
・・・・・・・・・・・・・・・・・●○

上記の立面計画案です